Home

Standort Mosbach

Lage / Konzept

Wohnungen

Mietkonzept

Kontakt / Impressum

1.Obergescgoss

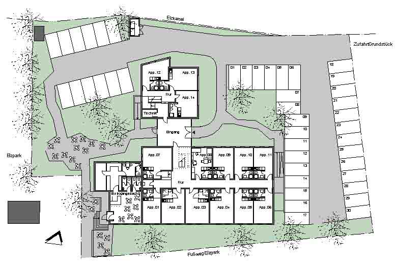
Die Wohnanlage:

  • 39 abgeschlossene Wohneinheiten (Einzimmerwohnungen)
  • Ansprechende Außenanlage
  • Stellplätze für jede Wohneinheit zugeordnet
  • Externe Verwaltung der Studentenwohnungen
  • Hausmeisterservice

Die möblierte Wohnung:

  • Studentengerechte Einzimmerwohnungen von ca. 23,00 qm bis ca. 32,00 qm
  • Dusche / WC und Kochnische
  • Junge, funktionale Möblierung
  • Sat-Anlage, PC-DSL Anschluß
  • Stellplätze zugeordnet
    Datenschutz

1. Obergeschoss

Erdgeschoss

Erdgeschoss
Draufsicht

Beispiel möbliertes Appartement

bauen, betreuen, verwalten